Vendita

Appartamenti e ville in vendita in canton ticino

Lugano

Rif. 12255

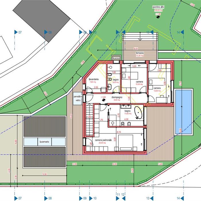
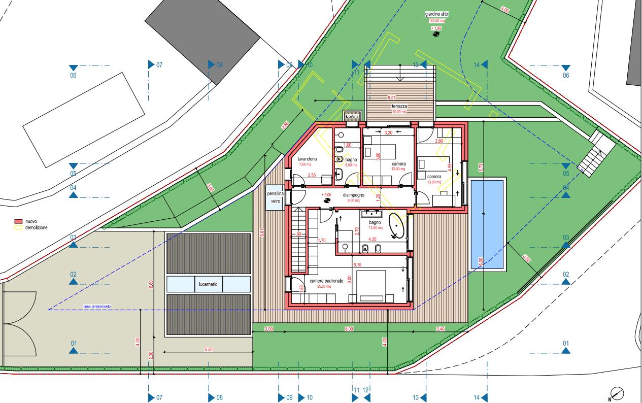
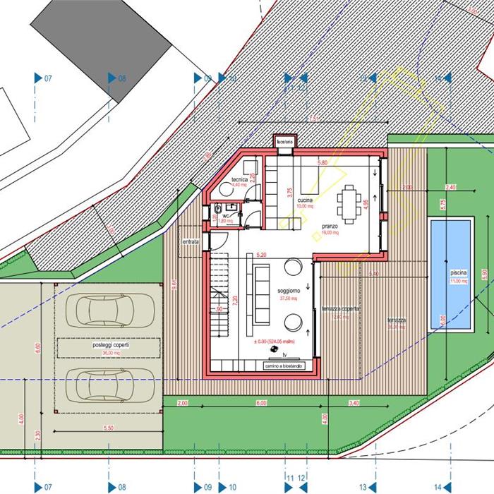
Terreno edificabile con licenza approvata – Lugano Sonvico In una delle zone più ricercate e tranquille di Lugano–Sonvico, proponiamo in vendita un terreno edificabile con licenza edilizia già approvata per la realizzazione di una villa unifamiliare moderna. Posizione Sonvico offre tranquillità, privacy, ottima esposizione e collegamenti rapidi con Lugano (10–12 minuti). Dati del fondo e indici urbanistici Superficie del terreno: 689 m² Zona: Residenziale semi-estensiva (Re) Indice di sfruttamento (I.S.) I.S. massimo di zona (0.5): 344.50 m² I.S. progetto approvato (0.26): 180.00 m² Indice di occupazione (I.O.) I.O. massimo di zona (30%): 206.70 m² I.O. progetto (21%): 148.00 m² Superficie verde minima Richiesta: 43% Progetto: 296.00 m² (43%) Progetto approvato La licenza autorizza la costruzione di una villa moderna e/o una casa bifamigliare con ampi spazi, grande luminosità e possibilità di personalizzazione.
  • Tipologia
  • Locali
    4,50
  • Metratura
    MQ
  • Servizi
    0
  • Posti auto
    SI - 2 Box auto
  • CHF Posto auto
    0 CAD
  • Prezzo
    820.000 CHF

Cerca altri immobili

RESIDENZA CONCORDIA
Ultime unità disponibili

A Cassarate, in un contesto residenziale a solo 1 km dal centro di Lugano. La palazzina sorge su una strada secondaria con medio impatto fonico e la zona inoltre è comoda per raggiungere scuole e negozi che si trovano a Lugano.

Chiedi info

Vacallo

Rif. 9468

  • Tipologia
    Appartamento
  • Locali
    3,50
  • Metratura
    90,00 MQ
  • Servizi
    1
  • Posti auto
    SI - 1 Esterni
  • Prezzo
    280.000 CHF

rovio

Rif. 9543

  • Tipologia
    Casa
  • Locali
    4,50
  • Metratura
    MQ
  • Servizi
    2
  • Posti auto
    SI - 1 Autorimessa 50.000 CAD, 1 Esterni 0 CAD
  • Prezzo
    1.200.000 CHF

Porto Torres

Rif. 3098

  • Tipologia
    Villa
  • Locali
    5,50
  • Metratura
    250,00 MQ
  • Servizi
    1
  • Posti auto
    SI - 1 Box auto 0 CAD, 1 Esterni 0 CAD
  • Prezzo
    2.200.000 CHF

Resta aggiornato

LUGANO
Via P.Lucchini, 2
6900 Lugano – CH
T +41 (0) 91 922 93 33
F +41 (0) 91 922 93 34
info@sitimmobiliare.ch

Orari di apertura:
Lunedi – Giovedì
h 8.30 – h 18.30
orario continuato
Venerdì
h 8.30 – h. 17.00
orario continuato
Sabato su appuntamento.

LOCARNO
Via B. Luini 12
Stabile La Ferriera
6600 Locarno – CH
T +41 (0) 91 922 93 33
F +41 (0) 91 922 93 34
info@sitimmobiliare.ch

Orari di apertura:
Lunedi – Giovedì
h 8.30 – h 18.30
orario continuato
Venerdì
h 8.30 – h. 17.00
orario continuato
Sabato su appuntamento.